Global Gateway Residential C8

EJADA Global Gateway Residential C8 2
ejada Global Gateway Residential C8
Client:

Arabian Construction Company (ACC)

Scope:

SDR , INS

Location:

Saadiyat Island, Abu Dhabi

Scope of Work

Shop Drawings Review (SDR)
Passive and Active Handover Inspection (INS)

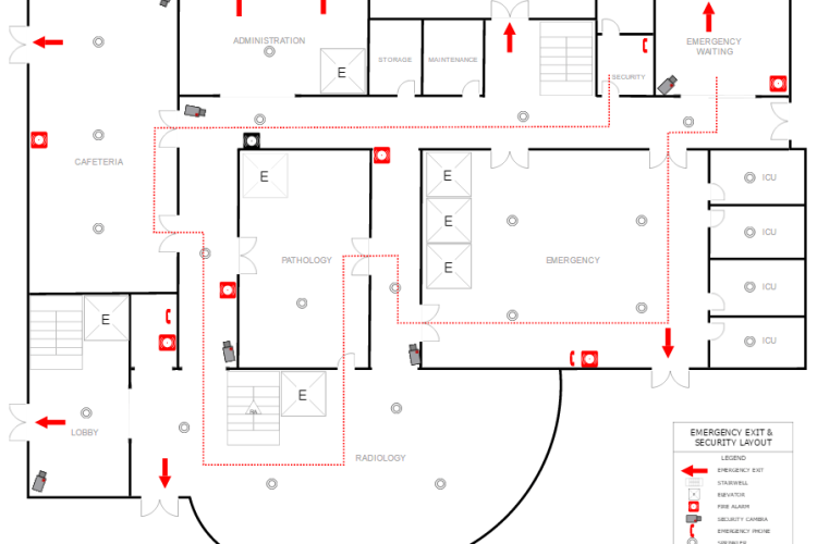
Ejada Pre-Fire Plan (PFP)
Get Quote

Do You Have Any Questions?
We’ll Be Happy To Assist!

Working Hours

Mon - Fri 8.00 to 18.00

Call Us